seit über 65 Jahren
seit über 65 Jahren

Was kostet eine moderne Elektroinstallation?

Quelle "JUNG.DE"

Um eine Elektroinstallation zu bekommen die heutigen Mindestanforderungen gerecht wird müssen ca. 3 % der Bausumme aufgewendet werden.

Eine großzügig und komfortable Elektroinstallation erhält der Bauherr ab 6 % der Bausumme.

Ab ca. 7 % der Bausumme ist eine Elektroinstallation mit KNX zu bekommen.

Die Werte und Angaben stammen vom Initiativkreis ELEKTRO +

Auf der Internetseite www.elektro-plus.com finden Bauherren und Renovierer wertvolle Hinweise für eine moderne Elektroinstallation. Sogar ein Online Planungstool für einzelne Räume ist vorhanden.

Was kostet mein Haus mit KNX?

Diese häufig gestellte Frage nehmen wir zum Anlass um die Kosten für ein KNX Haus  an einem Beispiel darzustellen.

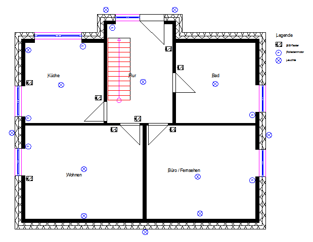
Gewählt wurde ein übliches 1-Familienhaus mit Erd- und Obergeschoss. Es wurden Licht- und Rolladensteuerung umgesetzt.

 

Im einzelnen hat das Haus den folgenden Funktionsumfang:

 

  • 22 Lichtgruppen oder Steckdosen einzeln und gesamt schalten

  • 4 Lichtgruppen einzeln und gesamt schalten und dimmen

  • 12 Rolladen oder Jalousien einzeln und gesamt bedienen

  • 4 Lichtszenen im Wohnbereich

  • Panikfunktion – alle Lichter an – alle Rolladen hoch

  • Zentral Aus (beim Abschließen des Hauses alle Lichter aus)

  • Welcome Funktion (beim Aufschließen des Hauses Licht im Flurbereich an)

Erdgeschoss

Obergeschoss

Die Kosten in diesem Beispiel setzen sich wie folgt zusammen:

 

Elektroinstallation komplett installiert in der Ausstattung 2plus (ohne KNX-Geräte)

 

ca. 13.800,- € einschließlich MwSt.

 

KNX – Geräte bestehend aus:

 

  • 1 Spannungsversorgung 640 mA

  • 2 Dimmer 2-fach KNX

  • 2 Schaltaktor 8-fach 16A C-Last

  • 2 Jalousieaktor 6-fach

  • 1 Binär-Ein/Ausgang 4-fach

  • 10 Taster 3-fach

  • 10 Busankoppler BTM

  • 7 Tastankoppler 2-fach

  • Programmierung

  • Schaltpläne

  • Montage

 

ca. 4900,- € einschließlich MwSt.

 

Somit kostet diese Elektroinstallation komplett ca. 18700,- €

 

Elektro Wilhelm Bücker e.Kfm.
Redder Str. 48
45711 Datteln

Telefon:

+49 2363 31781

+49 2363 976053

E-Mail:  

info@buecker-elektro.de

Unsere Bürozeiten

Montag bis Freitag

Termine nach Vereinbarung

Aktuelles / Angebote

Mehr

Druckversion | Sitemap
© Elektro-Bücker

Erstellt mit IONOS MyWebsite.